淘汰型號
對於新結構,我們建議使用經過技術優化的E4/輕型中的14040系列拖鏈
增加了25%的架空長度,更高的穩定性和抗拉強度,同樣的尺寸和安裝尺寸
140系列可選配,但庫存數量有限 產品支援和庫存將從2012年開始有所限制。如有任何疑問,請聯繫您的易格斯聯繫人 謝謝您的理解
對於E4/輕型14240系列
您可在此设定您个人的拖链系统。所有条目及零部件都位于页面底部的零件清单内。
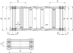
142系列拖鏈,每個鏈節均有橫杆
1. KMA接頭在所有端面都有安裝孔
2.可提供活動式和固定式接頭
3. 優化的內外尺寸比
4.一體式去應力元件
5.橫杆可從兩側拆卸
可提供內寬Bi: 25 - 125 mm
可提供彎曲半徑 R: 55 - 250 mm
節距:46 mm/鏈節 = 11 鏈節數/m