不再使用的型号
对于新建项目,我们建议采用技术改进的易格斯E2/000系列中的拖链系列2700。
通过横杆的安全支撑,改进的打开系统,采用相同的尺寸实现更大的架空长度
27系列可选配,但库存数量有限. 如有任何问题,请联系您的igus®代表。 感谢您的理解
转到E2/000系列2700
您可在此设定您个人的拖链系统。所有条目及零部件都位于页面底部的零件清单内。
27系列 - 链, 可沿外径方向快速打开
1. 大针——长使用寿命
2. 保护电缆的内部空间
3. 防脏污
4. 良好的内/外尺寸比
5. 可集成的去应力元件
6. 双止动器
7. 27i系列(内侧扣开),27(沿外径扣开)
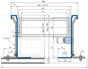
可提供内宽 Bi: 50 - 200 mm
可提供弯曲半径 R: 63 - 250 mm
螺距: 56 mm/链节 = 18 链节数/米